площадью 558,45 м2, по цене 83767500 по адресу территория Индустриальный парк Есипово -

Цена 83 767 500 р.
Адрес территория Индустриальный парк Есипово
Площадь помещения 558,45 м2
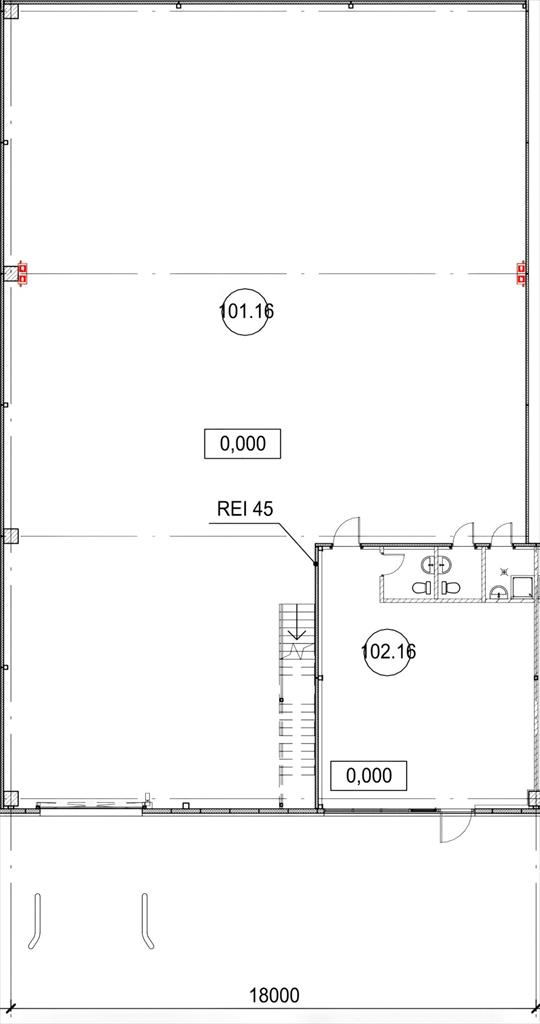
Готовое решение для малого бизнеса у ЦКАД! Предлагаем новое производственно-складское помещение в промышленном парке INDUSTRIAL CITY Есипово-5, идеально подходящее для малого и среднего бизнеса. Это компактное и эффективное решение позволит вам разместить производство, склад и офис в одном месте. Продажа осуществляется напрямую от собственника парка, что гарантирует отсутствие каких-либо комиссий и скрытых платежей! Формат Suite. Блок F, Бокс 16. Объект имеет удобную планировку: 428,34 кв.м для производственных или складских нужд. 64,40 кв.м под комфортную офисную часть. Отличная транспортная доступность Помещение расположено в северо-западном направлении, всего в 5 км от ЦКАД и в 34 км от МКАД, с удобным выездом на Ленинградское шоссе. Координаты: 56.085613, 37.092990. Такая локация обеспечит быструю и бесперебойную логистику, что особенно важно для эффективной работы малого предприятия. Это оптимальный вариант для тех, кто ищет качественное, но не слишком большое помещение в стратегически выгодном месте. ОСНОВНЫЕ ХАРАКТЕРИСТИКИ: - Класс: A - Температура: Сухой склад - Автоматическая спринклерная система пожаротушения - Высота: 8 м - Нагрузка на пол: 5 т/кв.м - Высококачественные бетонные полы с антипылевым покрытием и упрочняющим слоем - Сетка колонн: 12x24 - Ворота: на нулевой отметке КОММУНИКАЦИИ: - Электричество: 25 кВт (возможно увеличение мощности) - Вентиляция: приточно-вытяжная - Водоснабжение, канализация - Индивидуальные приборы учета ИНФРАСТРУКТУРА: - Парковки для транспорта: для грузовых авто — 2 места, для легкового авто — 4 места - Доступ к производственно-складским помещениям 24/7 - Охраняемая территория - Видеонаблюдение - Скоростной интернет и телефония ДОПОЛНИТЕЛЬНО: - Собственная профессиональная управляющая компания - Клининг - Консьерж-сервис - Мобильное приложение - Маркетплейс услуг - Кафе на территории - Зоны отдыха и спортивные площадки Готовы предоставить подробную информацию и организовать просмотр!
Объявление № 23459764
Дата подачи:
22 октября 2025 г. 5:53
Дата обновления:
22 октября 2025 г. 4:00
Просмотров 6 Хотите продать быстрее?

Продавец
Отдел продаж
Показать номер телефона
Пожаловаться
Комментарии:
Добавить